PEDECOLLINARE TOSCANA ALTA VILLE NUOVE DA IMPRESA

Bologna - zona Colli Murri

Rif: VAS1110
Condividi Linkedin Whatsapp Stampa
€ 4.300.000
Villa plurifamiliare
622 Mq
14 Vani
Giardino 1.300 mq
Classe energetica A2
6 Camere
4 Bagni
Garage
Bologna pedecollinare Toscana alta Via dell'Uccellino in contesto unico e irripetibile a 2 minuti da tutti i servizi proponiamo nuova costruzione in bioediliza immersa nel verde.
Due magnifiche ville monofamiliari dove il confort abitativo si unisce ad elevatissima prestazione energetica in classe A; le unità certificate antisismiche sono su tre livelli per circa 300 mq oltre servizi, ampi giardini privati, coperture piane ad uso terrazzo esclusivo, infissi e coibentazione di ultima generazione, fotovoltaico, dotate di garage doppio, domotica e finiture di alto standard.
Prezzo della due ville Eu. 4.300.000,00
Consegna primavera 2026, per informazioni e visite: 051 6230000
Una proposta di Studio Degli Esposti e Abitare Bologna

Dettaglio immobile

Contratto Vendita
Rif VAS1110
Prezzo € 4.300.000
Provincia Bologna
Comune Bologna
Zona Colli Murri
Indirizzo Via Dell'Uccellino
Superficie 622 mq
Vani 14
Camere 6
Bagni 4
Classe energetica A2 (DL 90/2013)
EPgl,nren 175 kwh/m2 anno
Riscaldamento autonomo
Condizioni nuova costruzione
Anno di costruzione 2026
Ascensore no
Garage 119 mq
Cantina si
Parcheggio si
Giardino 1.300 Mq
Cucina abitabile
Taverna si
Terrazza si

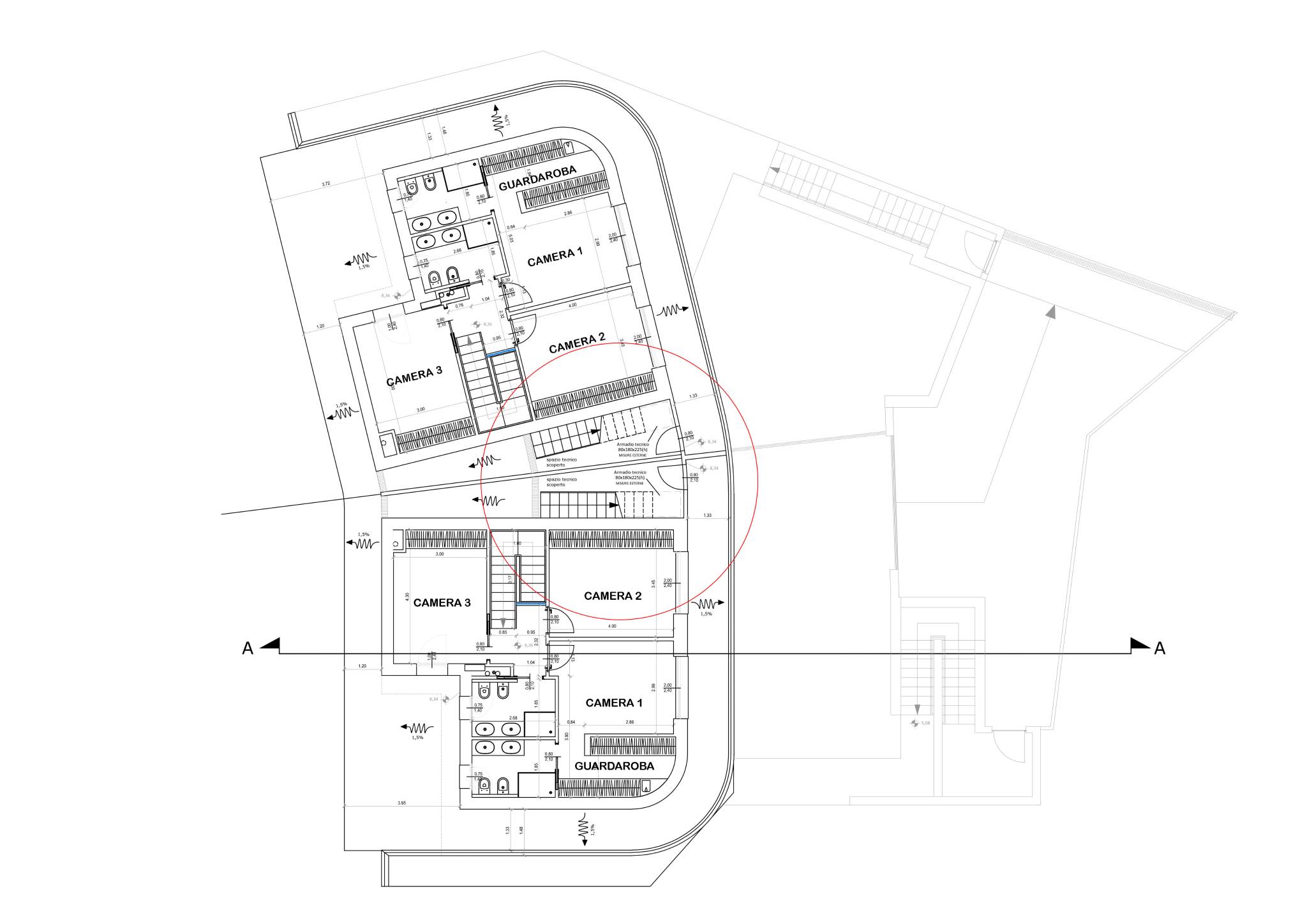
Consistenze

Descrizione Superficie Sup. comm.
Principali
Immobile - piano terra 184 Mq 184 Mqc
Immobile - 1° piano 162 Mq 162 Mqc
Immobile - seminterrato 184 Mq 138 Mqc
Box/Garage - seminterrato 119 Mq 30 Mqc
Terrazza - piano terra 152 Mq 46 Mqc
Terrazza - 1° piano 58 Mq 29 Mqc
Terrazza - 2° piano 222 Mq 33 Mqc
Accessorie
Giardino/Resede 1.300 Mq 130 Mqc
Totale 752 Mqc

Planimetrie

Richiedi maggiori informazioni

Autorizzazione al trattamento dei dati personali+
Dichiaro di aver letto l'informativa sulla privacy ed accetto le condizioni d'utilizzo del servizio.
Riempi il campo con il codice riportato nell'immagine*
Codice Captcha
Chiamaci Contattaci