CADRIANO

Granarolo Dell'Emilia (Bologna)

Rif: VCS1106
Condividi Linkedin Whatsapp Stampa
€ 420.000
Vendita
Capannone industriale
228 Mq
Classe energetica G
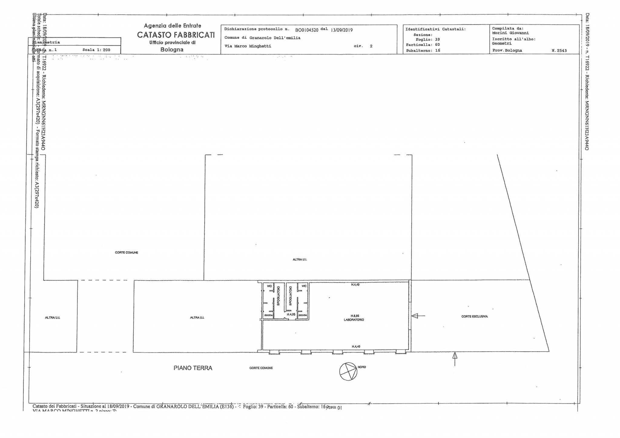
CADRIANO capannone indipendente di 210 mq. con uffici doppio servizio ampio corte privata di 180 mq Eu. 42.000,00 mensili mensili www.studiodegliesposti.it

Dettaglio immobile

Contratto Vendita
Rif VCS1106
Prezzo € 420.000
Provincia Bologna
Comune Granarolo Dell'Emilia
Indirizzo Via Marco Minghetti 2
Superficie 228 mq
Classe energetica G (DL 192/2005)
EPI 479.83 kwh/m2 anno
Riscaldamento autonomo
Condizioni abitabile
Ascensore no

Consistenze

Descrizione Superficie Sup. comm.
Principali
Capannone - piano terra 210 Mq 210 Mqc
Esterno - piano terra 180 Mq 18 Mqc
Totale 228 Mqc

Planimetrie

Richiedi maggiori informazioni

Autorizzazione al trattamento dei dati personali+
Dichiaro di aver letto l'informativa sulla privacy ed accetto le condizioni d'utilizzo del servizio.
Riempi il campo con il codice riportato nell'immagine*
Codice Captcha
Chiamaci Contattaci